Městská část Praha 22 - Zjednodušená verze stránek
Nastavení velikosti písma
+

Aktuální zpravodajství - Příprava Polyfunkčního domu v Pitkovicích se dostává do další fáze

Polyfunkční dům

Včera byly finálně potvrzeny návrhy dispozičních řešení polyfunkčního domu v Pitkovicích.

 

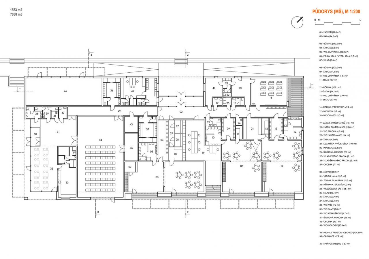
Včera byly finálně potvrzeny návrhy dispozičních řešení polyfunkčního domu v Pitkovicích. Ten se bude realizovat podle návrhu Ing. arch. Vojtěcha Hromka. Vnitřní prostor je navržen takovým způsobem, aby bylo možné rychle a s minimem finančních prostředků změnit funkci objektu z mateřské školy na 1. stupeň základní školy. Kromě MŠ/ZŠ bude v polyfunkčním domě i víceúčelový sál (185 m2), kavárna, kterou budou žáci ZŠ využívat jako jídelnu, a komerční prostor. V další fázi bude projekt pokračovat přípravou sportovních hřišť a klubovnou pro spolkové aktivity.

 

Od prosince je připravována projektová dokumentace pro společné územní a stavební řízení. Objekt je navržený v pasivním standardu, což naší MČ umožní čerpat až 30% dotaci z prostředků Státního fondu životního prostředí.

 

Na obrázcích si můžete prohlédnout, jak budou vypadat dispoziční řešení nového Polyfunkčního domu pro MŠ a následnou přeměnu na ZŠ.

 

Datum vložení: 8. 1. 2020 11:32
Datum poslední aktualizace: 17. 3. 2020 13:52
Autor: Pavel Veverka